Manufacturers & Exporters of : Scientific, Laboratory & Industrial Glass Equipment & Instrument.
Location:
Goregaon (E), Mumbai - 400 063
Mon - Sat:
9:00 am - 5:30 pm
Home
About Us
Products
Industrial Products
Laboratory Products
Glass Distillation Assembly
Technical Data
Contact
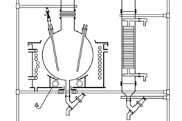
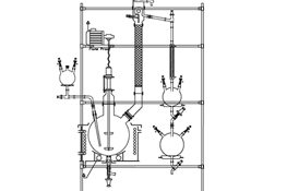
Glass Distillation Assembly
Home
Glass Distillation Assembly
Fractional Distillation Unit
Simple Glass Distillation Unit
Reaction Cum Distillation Unit